Price Reduced Listing
$599,000
 $3,401 est/mo Sourced by Back At You

1200 County Road 211 None,Giddings, TX 78942

Giddings, TX 78942

Share:

Description

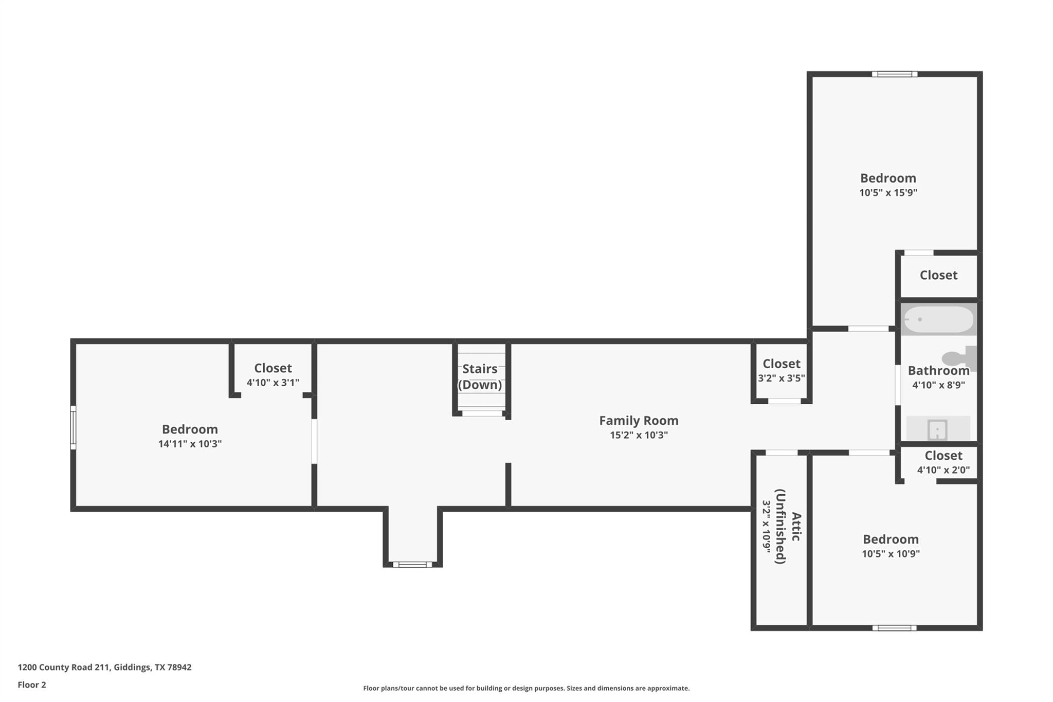
Welcome to your country retreat in the charming community of Serbin! Nestled on over 8 fenced acres, this spacious 5-bedroom, 3-bathroom home offers room to roam both inside and out. Whether you're looking for peaceful views, space for animals, or simply a little extra elbow room, this place has it all. The home features a welcoming front porch, a stylish kitchen with beadboard cabinetry and wood floors, and a large primary suite with a spa-like bath. Step out back to enjoy the expansive wooden deckperfect for entertaining under the stars. Outbuildings provide extra storage or workspace, and the property is just minutes from an amazing private K-8 school. If you’ve been dreaming of a slower pace with all the comforts of home, this Serbin stunner is calling your name! Additional 6 acres is available too!

Details

MLS #1948657
Listing TypeFor Sale
StyleHouse
Sub-TypeResale
StatusActive
Year1960
Days On Site185
Listing Provided ByAll City Real Estate Ltd. Co | Jacki Short

Features

Bed(s)5
Bath(s) 3 Total
SQ Feet2,824
Story(s)2
Acreage8.31
Water FrontYes
Property ViewPasture, Rural

Interior

Interior FeaturesCeiling Fan(s), Double Vanity, Eat-in Kitchen, Entrance Foyer, Primary Bedroom on Main, Storage, Two Primary Closets, Walk-In Closet(s)
CoolingCeiling Fan(s), Central Air
HeatingCentral
AppliancesDishwasher, Gas Cooktop, Gas Range
Fireplaces Total0
Window FeaturesBlinds
FlooringWood

Exterior

Exterior FeaturesGarden, Gutters Full
RoofMetal
Foundation DetailsPillar/Post/Pier
Lot FeaturesBack Yard, Cleared, Front Yard, Garden, Landscaped, Native Plants, Public Maintained Road, Many Trees
Patio And Porch FeaturesCovered, Deck, Front Porch, Porch, Rear Porch
FencingBack Yard, Barbed Wire, Livestock
Construction MaterialsCement Siding

Parking

Parking FeaturesCircular Driveway, Gravel
Garage Spaces0

Utilities

UtilitiesElectricity Connected, Propane, Sewer Connected, Water Connected
SewerSeptic Tank

Other

List AorAustin Board Of Realtors

Taxes

Property4060

Area Information

StateTX
CountyLee
CityGiddings
Zip Code78942
AreaLC
Community NameOltmann Parent First Tr
School DistrictGiddings ISD
Elementary SchoolGiddings
High SchoolGiddings
Sourced by Back At You

Request a showing

Request a showing

Loading Form

 Listings courtesy of Austin Board of REALTORS® MLS as distributed by MLS GRID.

Based on information submitted to the MLS GRID as of November 7, 2025 at 5:29:23 AM PST All data is obtained from various sources and may not have been verified by broker or MLS GRID. Supplied Open House Information is subject to change without notice. All information should be independently reviewed and verified for accuracy. Properties may or may not be listed by the office/agent presenting the information.

The Digital Millennium Copyright Act of 1998, 17 U.S.C. § 512 (the “DMCA”) provides recourse for copyright owners who believe that material appearing on the Internet infringes their rights under U.S. copyright law. If you believe in good faith that any content or material made available in connection with our website or services infringes your copyright, you (or your agent) may send us a notice requesting that the content or material be removed, or access to it blocked. Notices must be sent in writing by email to DMCAnotice@MLSGrid.com.

“The DMCA requires that your notice of alleged copyright infringement include the following information: (1) description of the copyrighted work that is the subject of claimed infringement; (2) description of the alleged infringing content and information sufficient to permit us to locate the content; (3) contact information for you, including your address, telephone number and email address; (4) a statement by you that you have a good faith belief that the content in the manner complained of is not authorized by the copyright owner, or its agent, or by the operation of any law; (5) a statement by you, signed under penalty of perjury, that the information in the notification is accurate and that you have the authority to enforce the copyrights that are claimed to be infringed; and (6) a physical or electronic signature of the copyright owner or a person authorized to act on the copyright owner’s behalf. Failure to include all of the above information may result in the delay of the processing of your complaint.

Contact

Learn More About This Property

StateTX
CountyLee
CityGiddings
Zip Code78942
AreaLC
Community NameOltmann Parent First Tr
School DistrictGiddings ISD
Elementary SchoolGiddings
High SchoolGiddings
Sourced by Back At You
Listing Updated: November 5, 2025 at 2:11:12 PM PST